
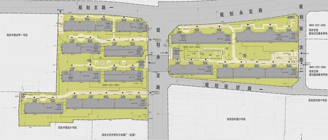
大家好,这里是off-plan.com。近日,北京汇海长住置业有限公司发生股权结构变更。公司信息显示,北京建工置业有限公司将公司136.05万元全部股权质押给保利(北京)房地产开发有限公司,本次股权承诺规模较大。加上此前质押的300万元股权,这相当于北建地产持有的汇海长株地产全部30%股权。工商登记信息显示,承诺对象已正式登记。本次股权承诺涉及的三方均为业内知名企业。北京建工地产是北京市大型国有企业,保利(北京)房地产开发有限公司是保利发展控股集团在北京的业务平台。完成后本次股权质押中,保利北京公司作为质押人,并享有优先受偿该股权的价款。北京汇海长珠是海淀新半壁店项目的项目公司。今年5月底,北京保利开发与房地产建设组成联合体收购海淀半壁店两块住宅地块,总价45.45亿元。 6月19日,北京汇海长住成立,注册资本为所收购土地的价值。保利北京和北建地产分别持股70%和30%。李洪亮,保利北京总经理,担任法定代表人、董事长、项目经理。不到一个月的时间,北建地产就质押了保利北京300万股权。随后,有传言称,半壁店项目将在开放对外销售之前达到现实生活阶段。结合重新的延迟一般土地规划租赁,可信度很高。北京建工地产小股质押的信息被猜测是退出该项目的前奏。半个月前,半壁店项目总体规划公布,最受关注的限高问题似乎得到了完美解决。此时,北京的建设地产承诺了它的全部正义。这个项目后续的发展越来越难以预测。 01.半壁店豪宅,拿地五个月后,保利建设海淀半壁店专业总体规划公布。另一方面,较晚拿地的宝山双房户型现已开放。开发过程受到轻微干扰。主要原因是半壁店地块的特殊性——高度限制问题。土地北侧有一个空军机场,面积约2平方公里距跑道数米。它位于一个空旷的区域,并且有严格的高度控制。正式挂牌后,该地块进行了监管调整,其中对项目影响最大的就是限高。改造后,主楼高度要求限制在15米以内,严格控制在18米以内。新的好房子法规鼓励开发商实现层高3米。按照这个高度限制,该项目可能连5层都建不了。不过,规范性文件中仍然留有一句话:必须以空军机场管理局的最终审批意见为准。或许正是因为这句话,泡利才萌生了“玩”的想法。最终,半壁店项目拟建建筑高度为15.89米。大多数建筑物高度超过15米,地上五层。项目建筑面积4.06公顷,总建筑面积建筑面积约10.15万平方米,其中地上5.8万平方米,地下4.35万平方米,容积率1.43。该排共有14栋住宅楼。排列成行,坐北朝南。分东、西区,共有330余套,户均面积约170平方米,层高3-3.1米。东区两排建筑之间有一个下沉式庭院,周围有景观走廊,顶部有几个空顶的方形亭子。西区间距确实没有太大改进空间,消防通道应该放弃。我们刚刚创建了一个圆形景观画廊。形状相当独特,可能是风水的缘故。礼物方面,看平面图并没有太多惊喜。南侧只有一扇直凸窗,不是像宝山窗那样做成大L型的。插入。可以预见的是,这里不会有客厅,而是两个朝南的房间各有一个区域。建筑南侧有大量窗井,首层很可能是一个单元台阶。 02.海淀第二次合作,均与保利。保利与建工是老合作伙伴。在北五环,双方合作开发的嘉华天骏项目已于今年年初入市。不过,这笔交易的进展并不十分理想。共有 1,276 套经过认证的房屋,目前有 216 套房屋在网上签约。已售出不足20%,开场海报的数字转换尚未完成。作为保利在北京价值最大的项目,必须采取措施扭转这一局面。上个月,嘉华天骏对西区滞销产品进行了堪称“换新”的改造,从建筑、装修等各方面都进行了优化。监管安排的成效尚不清楚,但最初引发了东区准业主的抗议。新方案共收到152条公众意见,涉及房屋价值、虚假广告、购房合同、东区补偿等问题。上个季度,李红亮的工作量很大。嘉华天君不仅要加快房子的销售速度,还要为之前的业主赋能。这与保利北京在海淀的声誉以及第一次北上的年卡报告有关。当前,半壁店项目申报规定以及合作伙伴离开后的资金问题值得重点关注。李洪亮是保利发展北京公司空降的“新教练”。他今年42岁,在保利发展了17年。从校招人员到集团骨干,再到总经理作为一家地区性公司的老板,他不断改变自己的身份。来北京公司前,李红良还曾担任保利发展职工监事、董事会办公室副总经理(主持工作)。 03、北京建工大力投资房地产,稳定现金流。如果半壁店项目真的如传言那样启动,可能要在一两年后。这个时候没有利润,绝对不是一般的房地产企业能够维持的。今年上半年,北建地产营收和净利润“逆转”,营收39.10亿元,同比下降41%;净利润1.08亿元,同比下降70%以上。截至6月底,北建地产归属于母公司所有者的净利润为-2719.57万元。怀柔新嘉塔云熙新项目虽然销售良好,但受控对公司生存的影响是有限的。毕竟工程量很小。原本预计半壁店项目将在今年内入市,但这个突破高度限制的设计方案能否顺利通过考验,我们还在拭目以待。得益于上半年拿地“收敛”,北京地产期末经营活动产生的现金流量净额由去年6月底的-19.61亿元,增加至18.5亿元;库存现金及现金等价物余额较上年同期的23.66亿元增加38.54亿元。截至2025年6月末,北京地产受限资产达187.09亿元,受限资产占未调整净资产的123.04%。上述受限财产主要是由于大量存货用于银行抵押所致。年龄贷款。
特别声明:以上内容(如有则包括照片或视频)由自媒体平台“网易号”用户上传发布。本平台仅提供信息存储服务。
注:以上内容(包括图片和视频,如有)由网易HAO用户上传发布,网易HAO为社交媒体平台,仅提供信息存储服务。